大型煤粉設備導讀
煤粉是石灰窯、工業鍋爐、火電廠、鋼廠等行業中應用廣泛的常用燃料,煤粉磨得越細,就越能使其充分燃燒,燃燒效率就越高,針對燃料行業的運行 現狀,桂林鴻程成功研制出HLM立式磨粉機、HC縱擺式煤磨機等高科技磨粉設備,專業應用于煤粉制備領域,通過增加防靜電處理、加裝防爆裝置、采用全新的開路系統等舉措,有效防止煤粉自燃現象,助力煤粉廣泛應用于各行業中。
原料檢測
桂林鴻程擁有10幾年專業從事煤碳制粉研究的豐富經驗,煤碳原料礦物的化驗,以確定合理的研磨方案;并能化驗成品粉體的細度與粒度分布、確定煤碳燃燒效率。從煤粉制備工程實際出發,為客戶提供煤碳加工領域品質及產量的技術支持。
項目申報
桂林鴻程的技術精英團隊,能根據客戶的制粉需求 ,提前做好項目規劃工作,在售前能幫助客戶準確定位設備選型工作,集中所有優勢資源協助提供可行性分析報告、環評報告、能評報告等所需的相關材料,為客戶的項目申報保駕護航。
工藝設計
桂林鴻程擁有技術先進的專業售前工程師團隊,為您提供設備選型的設計方案,生產車間的規劃、選址,以及電力支持等技術支持。售前工程師在了解客戶待加工物料性質、成品細度要求、產能要求、場地布置以及客戶投資成本等細節要求后,擬定科學生產線規劃布局方案,為您量身打造專業、合適、經濟的生產線解決方案。
設備選型
應用項目
-
-
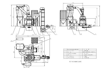
某集團年產20萬噸煤粉雷蒙磨粉機鍋爐供暖項目
該項目是為某集團補連塔煤礦井下供暖系統燃煤鍋爐提供煤粉。該項目總包業主為中國煤炭科學總院。中國煤科院從2009年以來,一直是鴻程的戰略合作伙伴,強強聯合。燃煤鍋爐煤粉項目都是采用鴻程的磨粉機進行系統配套。6年來,鴻程和煤科院精誠合作,煤粉制粉項目遍布全國煤炭主產區。本項目采用HC1700開路系統雷蒙磨三套,為研磨煤粉專門設計,HC1700煤粉磨粉機采用了開路、安裝防爆裝置等措施,系統安全可靠。HC1700磨粉機比傳統擺式磨粉機產量高30-40%,節能環保。
本設備型號和臺數: 3臺HC1700開路系統磨粉機
加工原料: 無煙煤
成品細度: 200目 D92
設備產量: 8-12噸/每小時
-
培訓指導
桂林鴻程擁有一支技術高超、售后服務意識強、訓練有素的售后團隊,售后可免費提供設備地基制作指導,提供售后安裝調試指導,提供維修保養培訓服務,在國內二十多個省和區設立辦事處和服務中心,24小時快速響應客戶需求,不定期對設備做好回訪,保養工作,全心全意為客戶創造更大價值。
-
項目驗收
桂林鴻程通過ISO9001:2015國際質量管理體系認證。嚴格按照認證要求組織相關活動,定期進行內部審核,不斷完善企業質量管理實施工作。鴻程擁有行業內先進的檢測設備,從鑄造原料到鋼液成分、熱處理、材料力學性能、金相、加工裝配等相關過程均配備了先進的檢測檢驗儀器,有力保障了產品的質量。鴻程擁有完善的質量管理系統。所有出廠設備均帶有獨立檔案,涉及加工、裝配、測試、安裝調試、維護、配件更換等信息資料,為產品追溯、反饋改進及更準確的為客戶服務創造了有力條件。
售后服務
貼心、周到、滿意的售后服務是桂林鴻程長期以來的經營理念,桂林鴻程深耕細作于磨粉機研制領域幾十年,不僅在產品品質上追求優異,與時俱進,而且在售后服務上均投入大量的資源塑造了一直技術高超的售后團隊,從安裝、調試、維護、保養等環節上加大力度,全天候滿足客戶需求,保證設備正常運轉,為客戶排憂解難,再創佳績!




